Pend Oreille River
Laclede, ID
- Body of Water:Pend Oreille River, ID
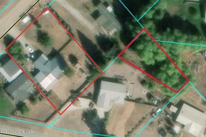
- Address:44 Campbell Loop [View Map]
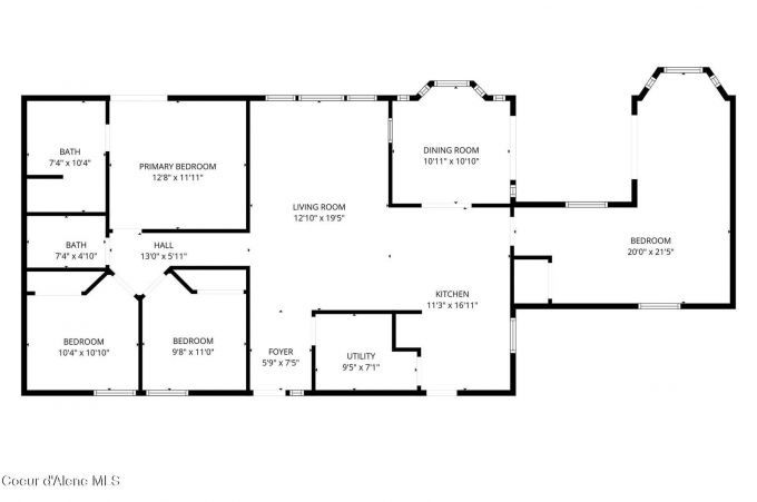
- Bedrooms:4
- Bathrooms:2
- Total SqFt [approx]:1578sqft
- Lot Size [approx]: 0.63acres
- MLS #:25-11399
- PRICE:$495,000
DESCRIPTION: Offering 1,578 sq ft of single-level living, this home features 3 true bedrooms plus a large flex/bonus room that can function as an additional bedroom, office, guest space, or media room. Spacious living room, dedicated dining area, and efficient kitchen with ample storage. Updated flooring in key areas and multiple sliders create easy indoor/outdoor flow. Big backyard with a treehouse, play area, and garden space—ideal for kids, pets, and projects. Solid home with room to personalize and build equity. Minutes from Riley Creek Recreation Area with public beach, boat launch, and campground on the Pend Oreille River. No CCRs or HOA, easy access to Hwy 2, and plenty of space for parking and gear. Hard-to-find size and value in this location. Includes a second .16-acre parcel formerly used as a drain field—separate and not connected to the home.
LISTING COURTESY OF: Tomlinson Sotheby's International Realty (Idaho)
Your Agent











































